Responsive Header
The Old Powerhouse at Garden Cottage, Plawsworth, Durham, DH3 4EQ
0191 731 8660
Home About Us Services Properties Shortlist Market Appraisal News Contact Us

25-26 Silver Street, Durham, DH1 3RD

  • Retail
  • 1,733 to 2,756 sq ft
  • To Let
25-26 Silver Street, Durham, Retail To Let - Photo Main
25-26 Silver Street, Durham, Retail To Let - Photo 2
25-26 Silver Street, Durham, Retail To Let - Photo 3
25-26 Silver Street, Durham, Retail To Let - Photo 4
Under Offer
Property Type Retail
Tenure To Let
Size 1,733 to 2,756 sq ft
Rent £75,000 per annum
Business Rates To be reassessed following redevelopment
Estate Charge n/a
Energy Performance Rating Upon enquiry

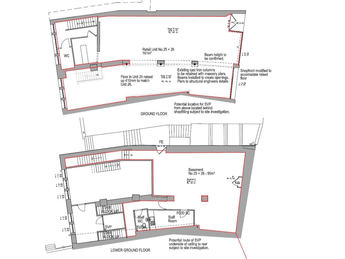
Proposed Double-Fronted City Centre Retail Unit

Key Features

  • Ground Floor: 1,733 sq ft with Lower Ground Ancillary: 1,023 sq ft
  • Prime Retail Pitch at the Heart of the Historic Cathedral City
  • Primary Retail Catchment of c. 120,000 People with 4.4 Million Tourists Visiting in 2023
  • Durham University is the Third Oldest in the UK with 20,268 Students (22/23)
  • Close to Tesco Express, Holland & Barratt, Rudy's Pizza, Caffe Nero, T4 & Lloyds Bank
  • Subject to Planning Permission

Description

An exciting opportunity is available to combine two prime city centre retail units at No. 25 and 26, Silver Street (subject to planning permission). The proposed redevelopment will create a substantial double-fronted ground floor retail space of approximately (1,733 sq ft), with ancillary storage and staff facilities at lower ground floor (c. 1,023 sq ft).

Available area

Name sq ft sq m
Ground 1,733 161
Lower Ground 1,023 95.04
Total 2,756 256.04

Location

The historic city of Durham is the economic and cultural centre of County Durham sitting approximately 18 miles south of Newcastle and 14 miles south west of Sunderland.

Durham benefits from excellent road communications being located in close proximity to the A690 and the A1M, connecting the city to the national motorway network. The city is on the main East Coast rail line from London to Edinburgh.

Durham has a resident population of 50,400 people and a catchment of approximately 120,000 which is boosted substantially by tourists and students. The city's cathedral and castle are designated by UNESCO as a World Heritage Site which helped attract 4.4 million visitors in 2023.

The property is situated on the pedestrianised section of Silver Street, at the heart of Durham's retailing cores, close to the River Wear and the Framwellgate Bridge.

Both the Riverwalk and Prince Bishops shopping centres are within close proximity of the subject property and provide valuable parking to the City with Silver Street being the pedestrian thoroughfare between the two.

Surrounding occupiers include Tesco Express, Holland & Barratt, Caffe Nero, Rudy's Pizza, T4, Grape Tree & Lloyds Bank.

Terms

The property will be available by way of a new EFRI lease for a term of years to be agreed at a rent of £75,000 pax, subject to 5 yearly upward only rent reviews.

EPC

Both units currently carry an E rating but a reassessment would need to take place following redevelopment.

Business Rates

The property will need to be reassessed following redevelopment.

VAT

All rents, premiums and purchase prices quoted herein are exclusive of VAT. All offers are to be made to us on this basis and where silent, offers will be deemed net of VAT.

Anti-Money Laundering Regulations

In accordance with anti-money laundering regulations, two forms of identification and confirmation of the source of funding will be required from the purchaser / tenant.